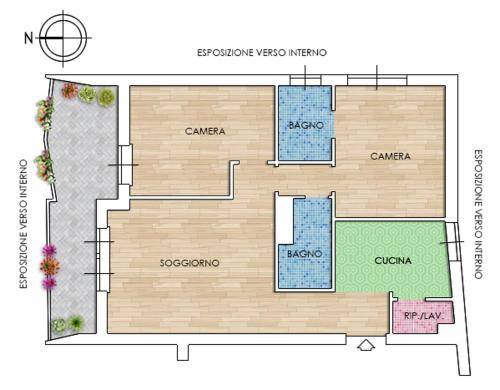
95 m² Apartment ∙ 2 bedrooms ∙ 5 guests | Apartment in Ticinese
|
|
2 Bedrooms
1 Bathroom
5 Guests
1022 ft²

2 Bedroom Apartment in Ticinese
This property will not accommodate hen, stag or similar parties.Managed by a private host
Policy on additional beds for children
Minimum age for guests: 18.
Guests 1 years and older are considered adults. There must be an extra bed for children in case the standard beds cannot accommodate them.
Show more
Amenities
Air Conditioner
Parking
TV
Bedding/Linens
Fireplace/Heating
Guest Services
Kitchen
Laundry
Area Surrounding
Airport
7.5 km
Shopping
1.4 km
Check Apartment Availability
Nightly rates from:
USD $159
You will be redirected to
Hot Deal - It has been viewed
40 times today
Not the right fit? Check out our other properties in Ticinese